Projet /
Surface /
Montant des travaux /
Maîtrise d'ouvrage /
Mission /
Programme /
Réalisation /
Lieu /

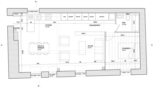
- Rénovation d'un appartement à Paris 11
- 50 m²
- 35 000 HT
- Privée
- Complète, en collaboration avec Hélène Reinhardt architecte
- Rénovation d'un appartement T2 ajusatable en T3
- Mission achevée
- Paris (75)