Projets
Infos
Contact
Projet suivant >>>>>
<<< Projet précédent
Projet /
Surface /
Montant des travaux /
Maîtrise d'ouvrage /
Mission /
Programme /
Réalisation /
Lieu /
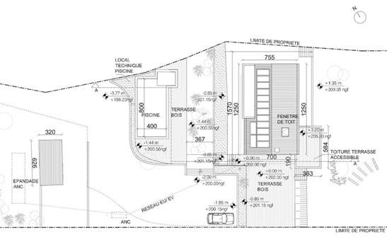
- Extension d'une maison individuelle
- 30 m²
- NC
- Privée
- Esquisse / PC
- Extension
- Mission achevée
- Meyreuil (13)
<<<Accueil
Projet suivant >>>>>
<<< Projet précédent
RBB Architectes - 56 rue de la Dysse 34150 Montpeyroux