Projets
Infos
Contact
Projet suivant >>>>>
<<< Projet précédent
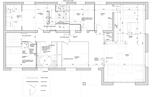
Projet /
Surface /
Montant des travaux /
Maîtrise d'ouvrage /
Mission /
Programme /
Réalisation /
Lieu /
- Réhabilitation d'un appartement
- 145 m²
- 65 000 HT
- Privée
- Esquisse / PC / PRO DCE / ACT
- T4
- Mission achevée
- Vitrolles (13)
<<<Accueil
Projet suivant >>>>>
<<< Projet précédent
RBB Architectes - 56 rue de la Dysse 34150 Montpeyroux